Neues Arbeitsplatzsystem im Wareneingang

für Gebr. Heller Maschinenfabrik GmbH

Als Hersteller für CNC-Werkzeugmaschinen war es dem Unternehmen HELLER wichtig, die Arbeitsplatzgestaltung im Wareneingang so effizient und sicher wie möglich zu gestalten. KRIEG WORKFLEX sorgte mit einer Neukonzeption für einen reibungslosen Warenfluss - lesen Sie im Folgenden mehr darüber.

Die Aufgabe

Individuell konzipiertes Arbeitsplatzsystem bei HELLER

Die Neuplanung der Arbeitsplatzgestaltung im Wareneingang sollte die Arbeitsprozesse effizienter machen und diese für eine Produktivitätssteigerung optimieren.

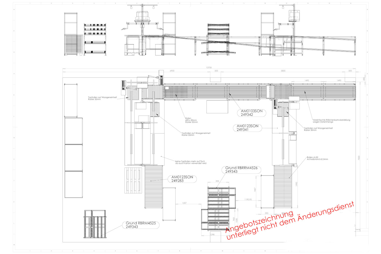
Sicht auf zwei Packtische im Wareneingang. Zu sehen sind die Auspack-Plätze mit Arbeitsplatzbeleuchtung und Monitorhalterungen. Des Weiteren sind Rammschutzecken angebracht worden, um das Anfahren von Staplern zu verhindern. Auf der rechten Seite sind die Regale für die optimale Materialbereitstellung zu sehen. Außerdem Sicht auf die untere Ebene der doppelstöckigen Rollenbahn. Auf dieser Ebene rollen die Behälter von allein bis zum Endanschlag.

Wareneingang Heller Praxisbeispiel

Die Umsetzung

Reibungsloser Warenfluss durch Doppelstöckige Multiflow-Rollenbahn

Alle Arbeitsprozesse im Wareneingang und die zugehörigen Komponenten des Arbeitsplatzsystems wurden neugestaltet und aufeinander abgestimmt. Dazu gehörten verschiedene Arbeitstische mit Zubehör wie Materialbereitstellung und Informationsbereitstellung. An diese Packstationen wurde eine doppelstöckige Multiflow-Rollenbahn angebracht, die besonders leistungsfähig ist für einen reibungslosen Warenfluss. Des Weiteren wurden die Arbeitstische mit praktischen, in die Tischplatte eingearbeiteten Kontrollwaagen versehen. Auch diese Optimierung führte zu einer Beschleunigung der Arbeitsabläufe.
Darüber hinaus wurden geeignete Ablageflächen für Ordner und Drucker, die Energieversorgung sowie die optimale PC-Anbindung definiert. Zusätzlich musste berücksichtigt werden, dass die von allen Packstationen gemeinsam genutzte, nicht angetriebene Rollenbahn, eine konstante Geschwindigkeit garantiert. Dies gelang durch den Einbau von Bremsrollen an den verschiedensten Positionen.
Wareneingang Heller Praxisbeispiel

CAD-Visualisierung

Auf den beiden Abbildungen sind die Montagearbeitsplätze der Firma Weitblick zu sehen. Solch eine Planung wird bei uns im Projektablauf für unsere Kunden umgesetzt.

Das Ergebnis

In mehreren Schritten zum optimalen Arbeitsplatz

Gemeinsam mit dem Kunden HELLER wurde in mehreren Planungsschritten eine optimale und individuelle Arbeitsplatzeinrichtung für den Wareneingang entwickelt.

Das hat WORKFLEX im Wareneingang bei HELLER umgesetzt:
✔ Optimale Aufstellung aller Arbeitstische
✔ Packtische mit eingelassenen Kontrollwaagen
✔ Für die Mitarbeiter bestmöglich platzierte Materialbereitstellung und Informationsbereitstellung
✔ Ideal angeordnete Greifräume mit Ablageflächen
✔ Doppelstöckige Rollenbahn für störungsfreien Warenfluss
Erzielt wurde damit eine Prozessoptimierung und Produktivitätssteigerung im Wareneingang. Gleichzeitig wurde auf Ergonomie am Arbeitsplatz geachtet, die der Gesunderhaltung der Mitarbeiter dient und gleichzeitig auch zur Leistungssteigerung beträgt.

Unternehmen Gebr. Heller Maschinenfabrik GmbH

Die HELLER-Gruppe ist einer der führenden global agierenden Hersteller für CNC-Werkzeugmaschinen. Das familiengeführte Unternehmen hat seinen Hauptsitz in Deutschland (Nürtingen/Baden-Württemberg) und weltweite Niederlassungen, unter anderem in Asien (Changzhou/China), Südamerika (Sorocaba/Brasilien) und auch in den Vereinigten Staaten (Troy/Michigan).

Für die Unternehmenszentrale der Heller Maschinenfabrik in Nürtingen hat WORKFLEX den Wareneingang in der Fertigung neu konzipiert und realisiert.

Wareneingang Heller Praxisbeispiel

Weitere Praxisbeispiele

Montage- & Fertigungsarbeitsplätze

Praxisbeispiele

Logistik-Arbeitsplätze

Praxisbeispiele

ESD-Arbeitsplätze

Praxisbeispiele